top of page

Create Your First Project

Start adding your projects to your portfolio. Click on "Manage Projects" to get started

Drawings

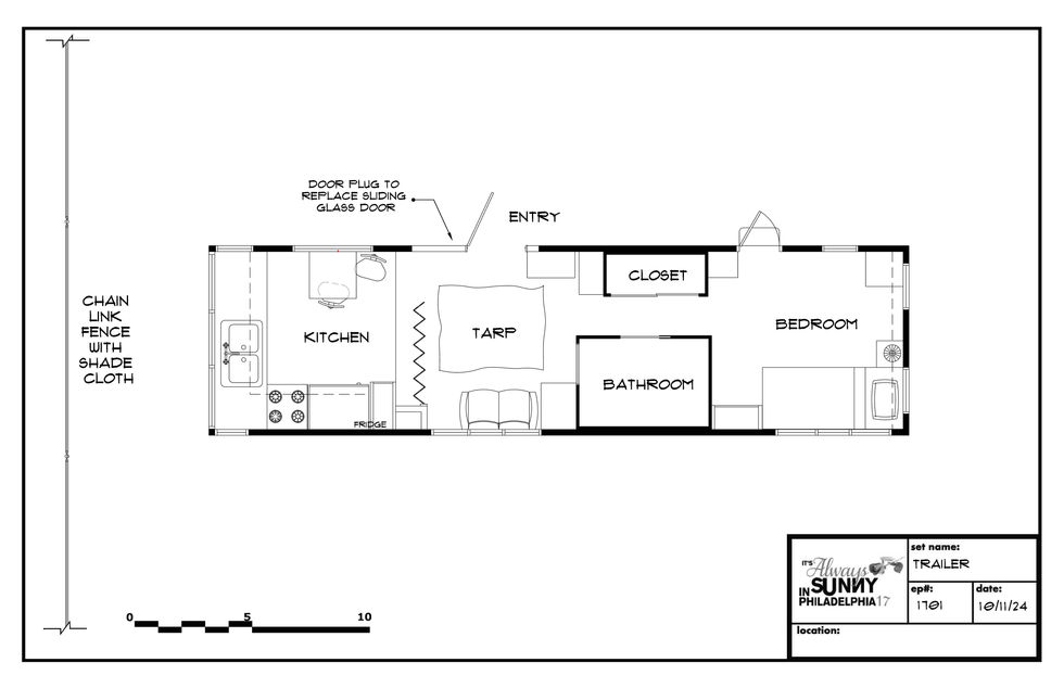
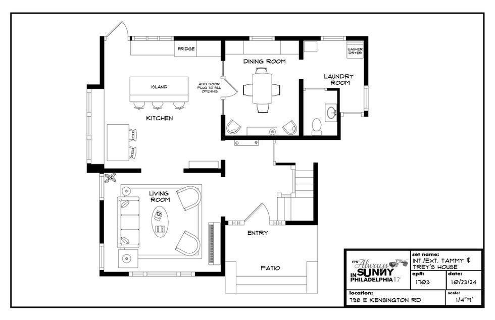
Using SketchUp, I create fast and detailed director plans that clearly communicate set layout and design elements.

bottom of page